連接件模型
Connector Model
Connector Model
聯系APAS / Contact us
- 地址:天津市西青經濟技術開發區賽達國際工業城A3-2.
- 郵箱:lxc@apas.com.cn
- 電話:022-87920088
- 傳真:請聯系網絡管理員
- 郵編:300385
- 咨詢熱線:13702119190(24小時服務熱線)
連接件模型
/ Connector Model

30系列(雙槽)鋁型材135度角碼3d模型
產品描述 / Name
30系列(雙槽)135度型材角碼主要適用于30系列3060、6060等規格工業鋁型材45度或135度角度連接,角碼緊固連接需搭配T型螺栓及法蘭螺母實現連接組裝;
022-87920099
可以根據需求進行設計加工,提供上門安裝服務;可以根據特殊需求進行鋁型材開模定制。
* 免費提供工業鋁型材選型手冊 →點擊咨詢
內容來源:http://www.zswzpt.cn/ 作者:武將 發布日期:2020年09月25日 10時13分 閱讀次數:5813 次
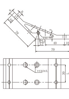
| 該規格連接件主要適用于30系列雙槽工業鋁型材(如3060、6060雙槽鋁型材)135度結構的快速連接,可以搭配專用緊固配件(彈片螺母、圓柱頭螺栓、T型螺栓、法蘭螺母)實現框架結構快速組裝,所使用緊固了連接件可以根據連接需求進行選型,應用較為靈活; |
| ? |
![]() ![]()
|
| ? |
|
30系列135度雙槽工業鋁型材連接角件材質為6063-T5系列鋁鎂合金型材,其特性主要體現在連接件的強度和韌性方面;鋁型材連接角件在收到較大扭力情況下會出現變形,但不會因扭力過大而炸裂,具有很高的安全性,是鋁型材框架組裝較為常用的連接配件; |
| ? |
|
槽型規格
|
L(mm)
|
D(mm)
|
材料
|
訂貨編號
|
|
槽8
|
56
|
φ6.5/φ8.5
|
6063-T5
|
CE-L7070-3056
|
聯系APAS/ Contact us
天津艾普斯工業鋁型材股份有限公司
聯系電話:022-87920088
企業傳真:(避免惡意廣告)請聯系該企業網絡管理員
服務熱線:13702119190 (24小時服務熱線)
Q Q:534973906
企業郵箱: lxc@apas.com.cn
企業地址:天津市西青經濟技術開發區賽達國際工業城A3-2
聯系電話:022-87920088
企業傳真:(避免惡意廣告)請聯系該企業網絡管理員
服務熱線:13702119190 (24小時服務熱線)
Q Q:534973906
企業郵箱: lxc@apas.com.cn
企業地址:天津市西青經濟技術開發區賽達國際工業城A3-2
采購意向留言:* 為必填















QQ咨詢
電話聯系
聯系電話

在線留言
樣冊下載
